top of page
Design concept, plans and council liaison were all delivered on schedule, couldn't be happier.
'John doe'



Lookout House
2022
Ocean Shores | NSW
Sculpture with Ocean View
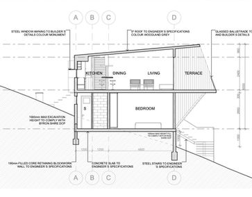
Perched on a steep slope, The Lookout House transforms its challenging terrain into a design advantage, offering a dramatic reveal as you enter the property. Designed to appear as a sculptural object resting on the landscape, the building harmonizes with its surroundings while commanding attention.
As you ascend to the upper level, the house opens up to breathtaking views of the Pacific Ocean, perfectly framed by the structure itself. The Red House not only capitalizes on its location but also redefines how architecture can interact with the natural environment.
bottom of page




